phone (907) 272-4347
fax (907) 272-5751
jwinchester@winchesteralaska.com
HOME
ABOUT US
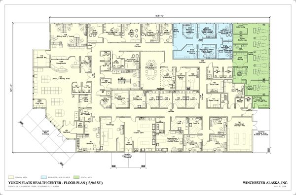
Yukon Flats Sub-regional Clinic - Ft. Yukon, Alaska
MAIN FLOOR PLAN
VOA ARCH Facility - Anchorage, Alaska
MAIN FLOOR PLAN
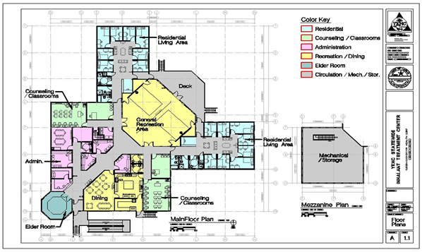
McCann Tundra Swan Treatment Facility - Bethel, Alaska
FLOOR PLANS
Bethel Long Term Care Facility - Bethel, Alaska
MAIN FLOOR PLAN
MEZZANINE FLOOR PLAN